La espectacular residencia aquí expuesta es uno de esos proyectos con identidad del estudio A-cero.
Vivienda construida en material de concreto con una superficie cubierta de 1.500 m2 y arquitectura tipo pérgola, con patios interiores y grandes cristalerías, muros de vidrio y ventanas amplias, que comunican el interior con el exterior.
Esta es una gran casa residencial moderna contemporánea de alto estándar y con diseño de estilo Minimalista.
Grandes volúmenes de hormigón y concreto en gris predominan pero en estudiado equilibrio gracias a las aberturas, la luz y el agua.
Concrete House I es una hermosa residencia de concreto y vidrio muy amplia, llena de iluminación natural que en la noche entrega luz a su entorno y se refleja en el agua.
Una gran residencia de concreto que se refleja en el lago de la urbanización
A-cero diseña casas espectaculares, supercasas, va más allá de los estándares y siempre sorprende con sus nuevos proyectos.
Fondos de la residencia sobre la piscina
Vista al atardecer desde la piscina con luces en la casa y reflejos en el agua y vidrios
El equilibrio entre volúmenes pesados y elementos livianos, transparentes y fluidos, es lo más destacable en este y en la mayoría de sus proyectos. Esta arquitectura residencial tiene sus admiradores y también detractores por la monumentalidad de las obras, especialmente las enormes masas de concreto.
Perspectiva de la casa desde el parque
Otras casas de gran tamaño de la firma de arquitectura que las proyectó son de este tipo y algunas tienen aspecto de diseño dinámico, los volúmenes muestran un perfil relacionado con el desplazamiento más que con lo estático.
Perspectiva de un sector con amplias aberturas visto desde el exterior
La notoriedad del arquitecto, cabeza del estudio A-cero, Joaquín Torres, también despierta controversias y estas se trasladan a la consideración de sus obras. La fama tiene un costo de este tipo particularmente en España y países hispanohablantes.
Vista nocturna desde el jardín del sector en la planta baja
Vista de las cocheras
En las obras de este estudio de arquitectura español hay aspectos distintivos y diferenciadores, suficientes para atender la demanda en el estándar alto del mercado, especialmente por residencias y villas.
Concreto y agua definidos por el diseño arquitectónico
Un perfil del cuerpo de la residencia en los fondos
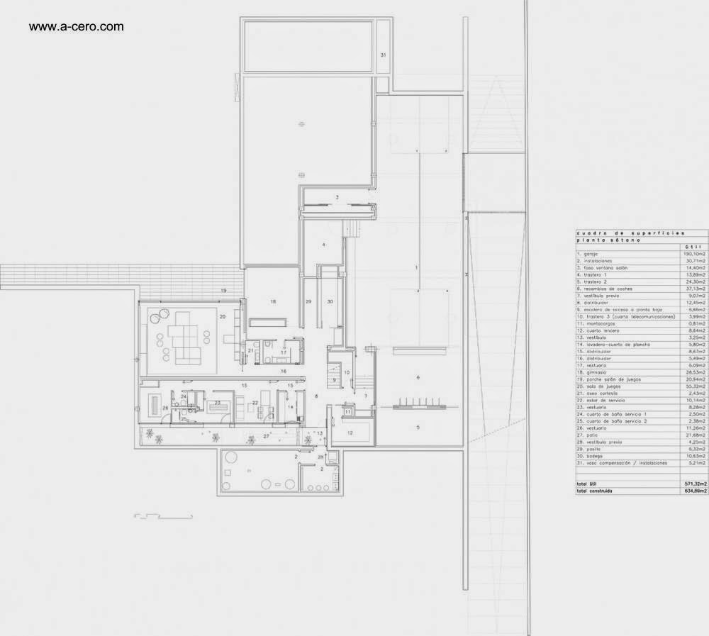
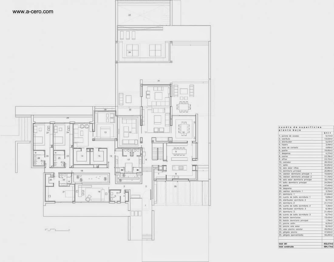
El hormigón y el concreto en volúmenes grandes y pesados, hasta puede pensarse en exceso, se ven aligerados, incluso como flotando, por lo que la carga de material se equilibra por un estudiado e inteligente diseño arquitectónico. Área construida 1.500 m2, la planta baja tiene 653 m2.
Perspectiva de detalles exteriores
A-cero Joaquín Torres architects estudio ubicado también en Pozuelo de Alarcón Madrid, España. El enlace le lleva a la página de este proyecto en su sitio de Internet.
Detalle de un acceso a la residencia
Con ayuda de los planos usted puede apreciar mejor y comprender la complejidad de esta exclusiva residencia española en donde destaca la extensa planta principal.
Pequeña construcción retirada, concebida como una típica cabaña de piedra de la zona pero con diseño arquitectónico actual.
La vivienda de uso temporario, pequeña casa vacacional, tiene tres niveles y solamente dos se pueden ver sobre el nivel del suelo.
El terreno en donde se ubica esta cabaña es montañoso y las vistas son el motivo por lo cual la casa de piedra está allí.
El concepto al que se ha recurrido está alineado con la sustentabilidad. La cabaña de piedra es un aporte natural al sitio donde se distingue por su aspecto cúbico de perfil nítido.
Esta cabaña de piedra está ubicada en Fleix, Vall de Laguar, Denia, Alicante, España. Sirve de pequeño refugio de montaña, construido procurando causar el menor impacto al ambiente, sobre todo al paisaje.
Cabaña de piedra en la montaña
Un bloque compacto, de 25 m2, hecho con materiales del lugar, por lo que se suma a la montaña como si se tratara de una piedra más.
El nivel inferior de la casa contiene un dormitorio, baño y escritorio y se ilumina por lucarnas, por fuera estas se ven como bancos en una terraza, así la luz le llega desde arriba.
La cabaña y su marco, perfil en blanco y negro
La planta principal es un espacio simple abierto con una cocina en un extremo y una sala de estar, abierta a las vistas del otro extremo. Sobre la plataforma entrepiso hay un pequeño dormitorio.
La casa tiene un diseño realmente simple pero sus terminaciones son de muy alta calidad. El interior está diseñado de modo que impresiona limpio, el acero fue pintado de negro, los pisos son de madera oscura y el cielorraso y las paredes son de color blanco.
Perspectiva de la cabaña y vista desde la montaña
Las paredes se ven muy gruesas porque hay unidades de almacenamiento en ellas, el lugar en donde se inserta la ventana sirve de pequeña alcoba.
Ventana de marco metálico en la cabaña de piedra
Los muros exteriores fueron hechos de piedras apiladas y trabadas, como pircas, tomadas del lugar mismo, este recurso integra a la cabaña con el entorno en el paisaje.
Escalera en el interior de la cabaña hacia un entrepiso
Las paredes gruesas permiten que las ventanas se ubiquen en el interior de la cabaña, definidas con marcos de acero rodeados de piedra, sirve para dejar fuera los intensos rayos de sol durante el día en el verano.
Imágenes del confortable interior estilo Contemporáneo
Las piedras absorben parte del calor díurno y lo entregan durante la noche, regulando así la temperatura interior.
Planos de plantas de la cabaña de piedra, niveles: inferior y principal
Plano de planta (entrepiso) y un corte con los tres niveles
modernas y contemporáneas, fachadas, diseño de interiores, planos, fotos, videos, y pasión por el tema
This website uses cookies to improve your experience. We'll assume you're ok with this, but you can opt-out if you wish.AcceptRead More