El diseño de esta casa es un experimento urbano, se ve como una doble, parece dos aproximadas de diseño similar.
Esta casa doble está ubicada en Kanagawa, Japón. El arquitecto partió de un volumen y le quitó por el medio una buena porción, de tal modo quedaron dos construcciones muy aproximadas. No hay paso cubierto entre ellas, se hace necesario salir de una para entrar en la otra.
Así y todo sigue siendo una casa para una familia. Si parece un juego de lógica, tenga presente que no lo es.
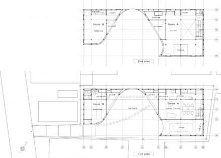
En una de las mitades se encuentra la cocina, el comedor, el baño y los dormitorios, mientras en la otra hay una sala, un lugar de trabajo y comodidades como para huéspedes o espacio para quedarse a mirar películas y usarla como mejor convenga. Un grado de libertad no posible con una casa convencional.

No es una casa resort ni es como una casa rural con el granero vecino, es una casa doble dividida en dos partes, no mitades. El volumen de la derecha es mayor que el de la izquierda y es el principal.

El lote mide 250 m2 y la superficie cubierta es de 179 m2 mientras la edificación ocupa 106 m2.

Aunque pueda impresionar que hay un pasaje cubierto entre los dos volúmenes, no lo hay. usted puede pensar justamente que es algo caprichoso y realmente lo es. No olvide que se trata de un experimento arquitectónico.
Revisando el plano de la planta puede comprender mejor el diseño de la casa doble japonesa. En cada volumen hay un entrepiso o segunda planta.

Abajo unos bloques de madera muestran como se forma la casa doble.

Visto en www.architonic.com Arquitectura de Akio Nakasa / naf architect & design - Fotografías de Toshiyuki Yano / Nacasa & Partners.
El mapa satelital interactivo permite explorar el área, hay plano de calles, zoom, fotos y street views.
También puede comparar arquitectura residencial contemporánea del Japón al ver otra casa doble aquí publicada con curioso diseño de aspecto escultórico, siga este enlace a la entrada.
Editado por Héctor H. Zorrilla.
- Vea una curiosa casa de campo de original techo estilo Posmoderno obra de Kengo Kuma.
- Hay una obra muy original que va a apreciar se trata de dos casas japonesas minimalistas formando una estructura sobre una calle pública en un barrio de Tokio.
- Compare con una residencia de lujo minimalista el área metropolitana de Tokio, siga este otro enlace.
Hay otra casa japonesa original pero de un concepto opuesto. Cerrada con un patio abierto central
https://arquitecturadecasas.info/2010/03/arquitectura-minimalista/
Está fabuloso, lástima que no se pueda apreciar por la escala y desde aquí no puedo ampliarla a mayor escala. Saludos gracias.