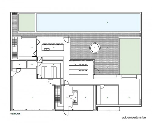
Es un extenso volumen arquitectónico cerrado hacia afuera que cubre espacios habitables muy luminosos los cuales se abren hacia el interior y atrás, un espacio amplio donde destaca la piscina exterior y el parque de la propiedad.
Todo el despliegue arquitectónico se hace en el eje horizontal pero la residencia cuenta con tres plantas de las cuales dos se muestran evidentes sobre el nivel del suelo. Aunque su diseño parece a primera vista muy simple en realidad esta casa se caracteriza por muchos detalles arquitectónicos afuera y adentro.

La textura de ladrillos en la terminación o acabado de los muros exteriores es lo primero que llama la atención de esta casa, junto con la imponencia del volumen. La carpintería es de color negro, define claramente las aberturas y lo hace con elegancia.

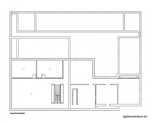
La trama de los tonos de los ladrillos hace de su aspecto algo singular y la distingue. En la planta superior para mantener privacidad, las habitaciones se abren a patios privados. Hay tres niveles en la estructura, el sótano, la planta principal, y la superior donde se ubican dormitorios.

A medida que se pasa de la planta baja a nivel del suelo a la alta, los espacios ganan privacidad. El sótano sirve para almacenamiento, la planta principal o baja es para las actividades sociales con sala de estar, comedor, y cocina.

El comedor se extiende hacia afuera atrás en una terraza, la separación es por amplias puertas ventanas, superficies de cristal. Arriba hay dormitorios, uno en suite para el matrimonio, y otro está reservado para las visitas.

Por dentro esta residencia está organizada según el sol y el jardín atrás. Los ambientes de estar se encuentran al fondo en contacto visual con el verde a través de aberturas muy amplias, abajo todo se encuentra conectado para una circulación fluida.

Las áreas estar caen dentro de un plan de diseño abierto y están separadas por muebles a medida. Esta es una obra de arquitectura residencial más cautivante que atractiva, para quien gusta de observar y fotografiar arquitectura, me incluyo, y destaca por los contrastes de materiales, además de la fuerte impresión que dan sus volúmenes.

Los ladrillos tienen tonos que van del negro al rojo y su aspecto es tosco como de un muro industrial, la terminación brillante como de cerámica guarda un equilibrio. Adentro todas las separaciones son blancas igual los cielorrasos. La escalera interior tiene sus escalones cubiertos finamente de madera pero un muro es de hormigón muy rústico.

El nombre de esta obra es Casa Dubois Barry, fue completada en 2014, proyecto del arquitecto Egide Meertens. Tiene 561 m2 de superficie, construida con mampostería tradicional con cubierta Trespa. Los cerramientos son de perfil de aluminio con cristal 1.0.
Del mismo estudio de arquitectura hay otra residencia aquí publicada, también con ladrillos por fuera y de dos plantas, siga este enlace.



La ventilación se logra con sistema D con recuperación de calor. El aislamiento de la pared es a través de una cámara de 12 cm con panel de espuma rígida PIR polisocianurato. El techo lleva un aislamiento de 20 cm y en el suelo de 12 cm.


En la cocina hay MDF con enchapado de nogal y acero inoxidable sobre la superficie de trabajo. En el baño hay laminado HPL y Corian en la encimera. Las fotografías son excelente y su autor Philippe Van Gelooven de Bégica, sitio web www.www.phvg.be

Al fotógrafo no se le ha escapado detalle de valor en esta arquitectura de alto nivel y cada toma además de brindar mucha información revela su maestría en este terreno.


Esta entrada se va mayormente en imágenes que muestra una residencia de arquitectura europea moderna, singular, y también inspiran para sacar buenas fotos.























Para ver esta moderna residencia belga en el sitio web del arquitecto siga este enlace. Es un buen ejemplo de arquitectura residencial de grandes proporciones en un país de escaso territorio, donde las perspectivas largas y cortas se pueden disfrutar al pasar junto a la casa, desde el interior y especialmente atrás.
Compare el diseño con el de otra casa contemporánea en Bélgica publicada en el blog asociado, siga este otro enlace.