Residencia urbana en un lote pequeño de la ciudad, cubierta por una fachada de ladrillos calada mostrando un patrón ondulante.
Dos son los aspectos que más destacan, de día la moderna casa ofrece ladrillos oscuros a la vista en una construcción curiosa.
En la noche la iluminación interior escapa por las aberturas de la fachada perforada y la casa impresiona como una linterna.
Es una casa nada convencional, pero utiliza albañilería tradicional del lugar, sobre todo desde los inicios del siglo 20, Arquitectura Moderna de Chicago.
Originalmente esta construcción fue un establo para caballos, reciclado ahora como casa residencial. Se llama Brick Weave House. El nombre es descriptivo y el proyecto un tributo a la laboriosa tarea de construir con ladrillos.
![]() |
| Casa con moderna fachada calada de ladrillos en Chicago |
Desde afuera no parece una casa, es una forma geométrica semejante a una caja. El patrón elegido en el calado de la pared no es común del lugar, aunque sí son los ladrillos, ligados a la tradición constructiva.
| Perspectiva de la fachada calada |
Sin apresurarse a emitir juicios, puede uno llegar advertir que se apeló al espíritu Moderno, fue ese justamente el propósito del estudio de arquitectura de Chicago, y no es cualquiera.
![]() |
| Garaje y esquina de ladrillos de la moderna casa |
![]() |
| Jardín por sustracción muros de la fachada |
| Perspectiva de la moderna fachada en invierno |
La imagen de arriba muestra la particularidad de la moderna fachada y puede advertirse el patrón de los ladrillos, con el aspecto propio de una caja de mampostería. Hay una estructura de columnas de acero, se ve desde el interior de la casa.
Esta arquitectura original de fachada tanto revela como oculta desde afuera, durante el día y en la noche.
| Fachada calada desde el dormitorio en alto |
Este proyecto puede resultar controversial para algunos, adorable para otros, y nada extraordinario incluso par alguien más. La entrada a la casa está de lado, junto al portón de la cochera.
| Sala y comedor en la planta baja |
Desde el interior del garaje se accede directamente a la cocina por una puerta. Esta residencia se construyó donde había un establo centenario en el lado oeste de Chicago. El presupuesto era modesto, los propietarios esperaban rescatar el edificio entero hasta que los daños del incendio quedaron al descubierto.
| Sala de estar y al fondo un sector de la fachada |
Quitando cuidadosamente lo dañado, se pudo rescatar un 30% para reusar en la nueva construcción. La pared del frente y el techo fueron removidos, creando un jardín rodeado por un muro calado, cribado, donde se demuestra la sensibilidad en el uso del ladrillo como un material tradicional de una forma sorprendente.
| Planos de plantas |
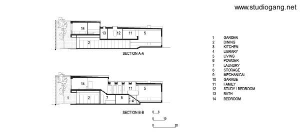
| Dos secciones de la estructura |
Las distintas alturas de cielorraso y niveles de piso entrelaza el jardín de doble altura al frente de la casa con el volumen de una sola planta atrás por una sección en cascada.
La fachada calada anima el jardín y también el interior de la casa con rayos de luz, establece una conexión visual hacia la calle y desde el exterior.
Los huecos rectangulares en la fachada forman patrones hexagonales de luz en el interior. En la noche el patrón se revierte y la casa parece una linterna. Superficie cubierta 3.250 pies2 (301.93 m2).







