google_ad_region = "test"
Esta construcción nórdica diseñada con forma de caja compacta, respeta técnicas tradicionales usadas por los granjeros pero suma diseño contemporáneo.
Externamente se caracteriza por la disposición de las tablas del siding de madera en la mitad inferior de la fachada principal copiando la inclinación del suelo y por las aberturas.
Su interior está bien definido, es nítido, también sobrio, sin duda alguna un diseño con patente de nórdico, espacio muy bien iluminado naturalmente, es un ambiente alegre y vital.
Se trata de una casa / cabaña de madera en las montañas, una estructura moderna de original y distintivo diseño contemporáneo. Por más información y fotos de casas residenciales hechas de madera siga este vínculo, encontrará una lista de entradas relevantes ordenada para su fácil consulta.
![]() |
| Moderna y tradicional casa de madera sobre una pendiente negativa |
Vea estas imágenes en galería sobre fondo oscuro, haga clic en cualquiera de ellas.
![]() |
| Singular disposición del siding de madera en la fachada |
![]() |
| Vista desde atrás y abajo |
![]() |
| Vista desde la casa vecina por atrás y desde abajo |
![]() |
| Vista de la casa rodeada por su entorno natural |
![]() |
| Perspectiva de la casa de madera al borde mismo de la ladera |
![]() |
| Vista interior de la casa con planteo abierto y la estufa de calefacción |
![]() |
| Moderna cocina de la casa de madera |
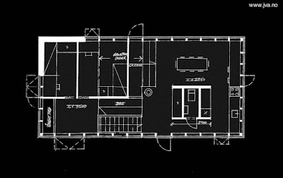
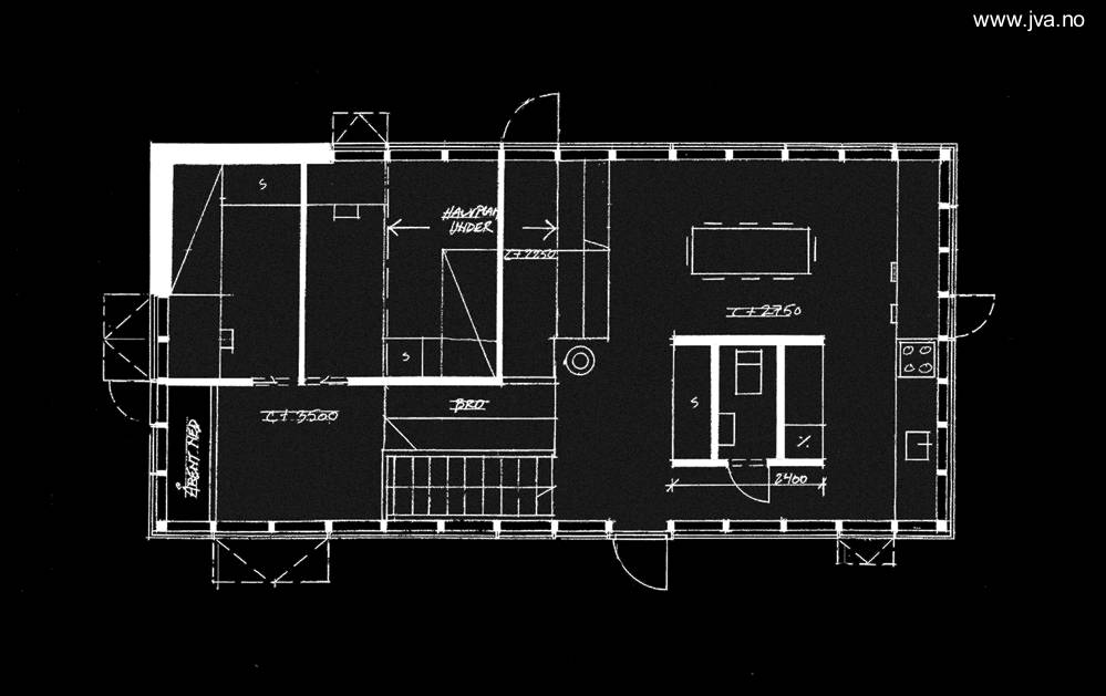
![]() |
| Plano de la planta superior |
![]() |
| Maqueta planta inferior |
![]() |
| Maqueta de la planta alta |
![]() |
| Maqueta en perspectiva |
Las bandas continuas de ventanas permiten el ingreso de la luz a las dos plantas y vistas diferentes durante el día. El proyecto Farm house, cliente Ane Kristin Rogstad y Trond Nygård., es del estudio JVA de Oslo, hay una página con imágenes de esta moderna casa/cabaña nórdica de Noruega en el sitio web de los arquitectos.
Vea más casas de madera con buen diseño arquitectónico, siga los vínculos a continuación.
Relacionados:
|
Por favor, deje su opinión por escrito en un comentario al pie. Agregue este blog de arquitectura de casas a su lista de Favoritos. Para estar al día con las publicaciones inserte su dirección de correo electrónico en la ventana de la barra lateral. Más abajo hay una breve encuesta muy fácil de responder con un clic, sirve para orientar la publicación de los contenidos según su motivación e intereses. Gracias por participar.
La información publicada en este blog se complementa con la del sitio principal, usted puede
consultarlo desde las imágenes vinculadas a las entradas recientes y la nueva, ubicadas en la columna
lateral. El propósito de estas publicaciones asociadas es divulgar información solamente, no
se brindan servicios de arquitectura.
google_ad_region = "test"












2 comentarios :
very nice building
@this too will pass Thank you for the comment.
Publicar un comentario